1/2
RS-Temp.Walls 2 ver.1.7
¥5,500
International shipping available
この商品は1点までのご注文とさせていただきます。
"道路土工指針" に準拠! 土留め設計計算ツール 第2弾
"RS-Temp.Walls 2" は,"自立式" の "シートパイル"!
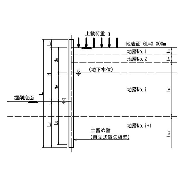
"RS-Temp.Walls 2" は,簡単にかつ素早く,"自立式鋼矢板土留め壁" の設計計算書を作成するための Microsoft Excel VBA プログラムです。
設計条件の変更にリアルタイムに応答する計算結果を確認しながら,土留めの形状や土層分布など,大まかな設計条件を設定してください。「道路土工-仮設構造物工指針;(社)日本道路協会,平成11年3月」に準拠した自立式土留め壁と仮締切り工(一重式自立鋼矢板方式)の設計計算書を,短時間で作成したいただくことが可能です。作成された計算書は,Microsoft Excel のワークシート形式ファイルですので,章題やフォント,計算書の構成などを自由に編集していただくことも可能です。
自立式土留めの設計は,"RS-Temp.Walls" シリーズで 超速! 簡単! に片付けてしまいましょう。
※)お支払いの確定後2営業日以内に,ご購入時に設定していただいたメールアドレス宛に,当該ソフトウェアをお届けします。
※)当該ソフトウェアのご利用には,Microsoft Excel 2013/2016/2019/365 が必要です。Excel 2010 以前のバージョンには,対応しておりません。
-
レビュー
(2)
最近チェックした商品
同じカテゴリの商品
セール中の商品
その他の商品
CATEGORY
